
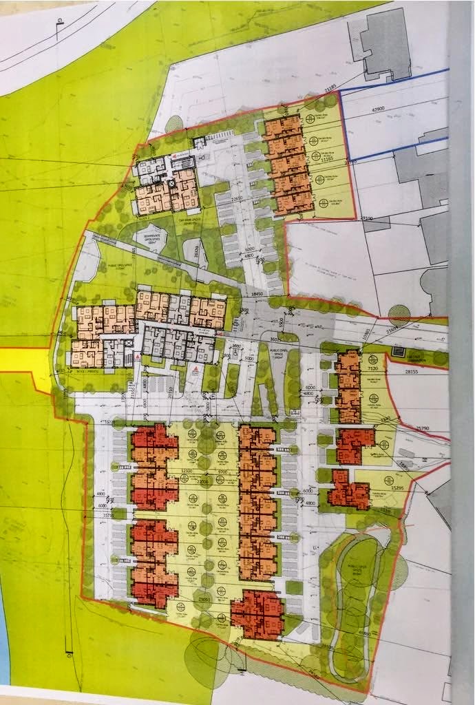
Dlrcc have approved planning permission for a residential development of 72 units at Ards Cartref at Old Bray Road, Cabinteely Village. The site overlooks Brennanstown to the east.
The development will consist of 72 dwellings comprising 46 apartments (16 no. 1-bed, 29 no. 2-bed and 1 no. 3-bed units) accommodated in 2 no. 3-5 storey buildings and including balconies or terraces on north, east, south and west elevations and solar panels on the roof;


2

2 2-storey terraced semi-detached and detached houses and 4 2-storey plus attic semi-detached houses (18 3 bed and 8 4-bed units), including solar panels on the roof.
All associated site development, landscape and boundary treatment works including demolition of 2 no. existing habitable houses, Cartref (c.206.5 sqm) and Ards (c.263 sqm) and associated outbuildings, main vehicular access and egress to scheme via the existing Cartref site onto the Old Bray Road, to provide two-way carriageway and a footpath, existing vehicular driveway to Ards to serve as private driveway to 1 dwelling within the proposed scheme, 103 no. car parking spaces (32 no. semi-basement and 71 surface), 109 bicycle spaces located in external shelters and semi-basement to serve apartment units and visitors, pedestrian link to existing linear open space alongside Cabinteely stream to the west of the site and an electricity sub-station (c.8.2 sqm).

